Wettbewerbe für Architekten und Ingenieure, Landschaftsarchitekten, Architektur Studenten Wettbewerbe für Architekten und Ingenieure, Landschaftsarchitekten, Architektur Studenten
X

NEU: Bitte beachten Sie, dass Sie sich ab sofort mit E-Mail und Passwort einloggen.

Passwort erneuern
Neu registrieren

  • Kunstquartier PLATEFORME 10 – WB: Pôle Muséal – Musée de Design et d’Arts appliqués contemporains & Musée cantonal de la Photographie | © Matthieu Gafsou
  • Kunstquartier PLATEFORME 10 – WB: Pôle Muséal – Musée de Design et d’Arts appliqués contemporains & Musée cantonal de la Photographie | © Matthieu Gafsou
  • Kunstquartier PLATEFORME 10 – WB: Pôle Muséal – Musée de Design et d’Arts appliqués contemporains & Musée cantonal de la Photographie | © Matthieu Gafsou
  • Kunstquartier PLATEFORME 10 – WB: Pôle Muséal – Musée de Design et d’Arts appliqués contemporains & Musée cantonal de la Photographie | © Matthieu Gafsou
  • Bâtiment du mudac et de Photo Elysée à Plateforme 10
    Copyright: Matthieu Gafsou
  • Bâtiment du mudac et de Photo Elysée à Plateforme 10
    Copyright: Matthieu Gafsou
  • Bâtiment du mudac et de Photo Elysée à Plateforme 10
    Copyright: Matthieu Gafsou
  • Bâtiment du mudac et de Photo Elysée à Plateforme 10
    Copyright: Matthieu Gafsou

Kunstquartier PLATEFORME 10 – WB: Pôle Muséal – Musée de Design et d’Arts appliqués contemporains & Musée cantonal de la Photographie , Lausanne/ Schweiz

Architektur Wettbewerbs-Ergebnis

Sie sind Abonnent? einloggen

Veröffentlicht als:

Dokumentation
Zwischenbericht
Weiterverfolgt
wa-ID
wa-2014078
Tag der Veröffentlichung
24.09.2015
Aktualisiert am
31.08.2022
Verfahrensart
Nicht offener Wettbewerb
Teilnehmer
Architekten und Ingenieure
Beteiligung
21 Arbeiten
Auslober
Abgabetermin Pläne
21.08.2015
Abgabetermin Modell
28.08.2015
Preisgerichtssitzung
24.09.2015
Fertigstellung
2021

Wie lautet der dritte Buchstabe von "wettbewerbe"?


Fotos: Matthieu Gafsou,  Gammuto Sàrl, 

Architektur
Aires Mateus e Associados, Lissabon
Projektleitung: Francisco Caseiro
Mitarbeit: Inês Monteiro · Mariana Mayer · Charles Cossement · Daniel López · Bernardo Sousa · Luz Jiménez · Christophe Gourdier · Nicole Addati · Andrea Auerbach · Diogo Castro Guimarães · Leonardo Marchesi · Vega Solaz Soler · João Ortigão Ramos · Josh Ehrlich · Théophile Legrain · Olga Sanina · Ana Rita Rosa · Paulo Pina · María Morales · Carolina Coppola · Isabella Pagliuca · Luís Norton dos Reis
AFAconsult

Bauherr: Canton de Vaud
Standort: Place de la Riponne 10, 1014 Lausanne/CH

Projektdaten
Bauzeit: 2017 – 2021
Gesamtfläche: 14 400 m²
Grundsücksfläche: 6.400 m2
mudac: 1.850 m2
Photo Elysée: 1.520 m2


Kunstquartier PLATEFORME 10, Lausanne

Dem neuen Museumsquartier in Lausanne liegen verschiedene Architekturwettbewerbe zugrunde: Zum einen wurde 2011 ein internationaler Wettbewerb für das „Musée Cantonal des Beaux-Arts“ ausgeschrieben, welchen das damals noch wenig bekannte Duo Barozzi Veiga aus Barcelona gewonnen hatte, zum anderen der 2015 ausgeschriebene Wettbewerb für den das Gelände nach Westen hin abschließenden Bau für das Doppelmuseum, genannt „Pôle muséal“. Letzteren gewannen die Brüder Manuel und Francisco Aires Mateus aus Lissabon mit ihrem Entwurf eines kubisch gefassten Diamanten. Das MCBA hat seit seiner Eröffnung im Herbst 2019 bereits Hunderttausende von Besucher*innen empfangen. Doch die tatsächlichen architektonischen Qualitäten der von Barozzi und Veiga konzipierten Gesamtanlage lassen sich erst jetzt und mit der Fertigstellung des Pôle muséal richtig erleben. Ende Juni 2022 wurden die Museen endlich eingeweiht und gleichzeitig das ganze Kunstviertel gefeiert: Nun ist es möglich, die lange, durch die geriffelte Backsteinfassade des MCBA vom Gleisfeld getrennte Esplanade zu überblicken, die jetzt vom neuen, minimalistisch-skulpturalen Doppelmuseum präzise abgeschlossen wird. Letzteres erscheint nämlich nur im ersten Augenblick ähnlich minimalistisch wie das Musée Cantonal des Beaux-Arts, doch das unregelmäßig gezackte Fensterband, das rund ums Gebäude herum läuft und die Fassaden gleichsam aufschlitzt – weshalb die Betonmasse des Obergeschosses zu schweben scheint – verleiht dem Bauwerk eine besonders expressive und skulpturale Note.

siehe auch -> wa-ID:2021309
MCBA – Musée cantonal des Beaux-Artes de Lausanne


Musée de Design et d’Arts appliqués contemporains & Musée cantonal de la Photographie

Die Besucher*innen finden hier zwei unterschiedliche Museen vor: Eines ist dem Design gewidmet, das demnach viel Licht benötigt, das andere der Fotografie, bei der wiederum das Licht streng kontrolliert werden muss. Der Standort des Museums befindet sich in der Nähe eines großen Bahnsteigs, also eines öffentlichen Raumes. Das Projekt beinhaltet insofern auch die Erweiterung dieses öffentlichen Raums in einen sehr transparenten Innenraum hinein. Genau hier möchte das Gebäude anknüpfen:
Sein Volumen verdichtet gleichsam die öffentlichen Wege und Aktivitäten, indem es einen besonderen Raum zwischen den beiden Museen entwirft, wo sich Boden und Decke in drei Punkten berühren und wo sich das Gebäude schließlich strukturell und funktionell erschließt. Darum herum sind in diesem einzigen freistehenden Körper die Hilfs- und Serviceeinrichtungen untergebracht. Die gesamte Anlage kann als eine Art steinerne Wand gelesen werden, die schließlich den öffentlichen Kubus freigibt, wie ein Volumen, das gleichsam von einer geologischen Transparenz zerrissen wird.
 

  • Bâtiment du mudac et de Photo Elysée à Plateforme 10 | © Matthieu Gafsou
  • Bâtiment du mudac et de Photo Elysée à Plateforme 10 | © Matthieu Gafsou
  • Bâtiment du mudac et de Photo Elysée à Plateforme 10 | © Matthieu Gafsou
  • Bâtiment du mudac et de Photo Elysée à Plateforme 10 | © Matthieu Gafsou
  • Bâtiment du mudac et de Photo Elysée à Plateforme 10 | © Matthieu Gafsou
  • Bâtiment du mudac et de Photo Elysée à Plateforme 10 | © Matthieu Gafsou
  • Bâtiment du mudac et de Photo Elysée à Plateforme 10 | © Matthieu Gafsou
  • Bâtiment du mudac et de Photo Elysée à Plateforme 10
  • Bâtiment du mudac et de Photo Elysée à Plateforme 10 | © Matthieu Gafsou
  • Bâtiment du mudac et de Photo Elysée à Plateforme 10 | © Matthieu Gafsou
  • Bâtiment du mudac et de Photo Elysée à Plateforme 10 | © Gammuto Sàrl
  • Bâtiment du mudac et de Photo Elysée à Plateforme 10
  • Bâtiment du mudac et de Photo Elysée à Plateforme 10 | © Matthieu Gafsou
  • Bâtiment du mudac et de Photo Elysée à Plateforme 10 | © Matthieu Gafsou
  • Bâtiment du mudac et de Photo Elysée à Plateforme 10 | © Matthieu Gafsou
  • Kunstquartier PLATEFORME 10 – WB: Pôle Muséal – Musée de Design et d’Arts appliqués contemporains & Musée cantonal de la Photographie | © Aires Mateus e Associados, Lissabon
  • Kunstquartier PLATEFORME 10 – WB: Pôle Muséal – Musée de Design et d’Arts appliqués contemporains & Musée cantonal de la Photographie | © Aires Mateus e Associados, Lissabon
  • Kunstquartier PLATEFORME 10 – WB: Pôle Muséal – Musée de Design et d’Arts appliqués contemporains & Musée cantonal de la Photographie | © Aires Mateus e Associados, Lissabon
  • Kunstquartier PLATEFORME 10 – WB: Pôle Muséal – Musée de Design et d’Arts appliqués contemporains & Musée cantonal de la Photographie | © Aires Mateus e Associados, Lissabon
  • Kunstquartier PLATEFORME 10 – WB: Pôle Muséal – Musée de Design et d’Arts appliqués contemporains & Musée cantonal de la Photographie | © Aires Mateus e Associados, Lissabon
  • Kunstquartier PLATEFORME 10 – WB: Pôle Muséal – Musée de Design et d’Arts appliqués contemporains & Musée cantonal de la Photographie | © Aires Mateus e Associados, Lissabon
  • Kunstquartier PLATEFORME 10 – WB: Pôle Muséal – Musée de Design et d’Arts appliqués contemporains & Musée cantonal de la Photographie | © Aires Mateus e Associados, Lissabon
  • Kunstquartier PLATEFORME 10 – WB: Pôle Muséal – Musée de Design et d’Arts appliqués contemporains & Musée cantonal de la Photographie | © Aires Mateus e Associados, Lissabon
  • Bâtiment du mudac et de Photo Elysée à Plateforme 10
    Copyright: Matthieu Gafsou
  • Bâtiment du mudac et de Photo Elysée à Plateforme 10
    Copyright: Matthieu Gafsou
  • Bâtiment du mudac et de Photo Elysée à Plateforme 10
    Copyright: Matthieu Gafsou
  • Bâtiment du mudac et de Photo Elysée à Plateforme 10
    Copyright: Matthieu Gafsou
  • Bâtiment du mudac et de Photo Elysée à Plateforme 10
    Copyright: Matthieu Gafsou
  • Bâtiment du mudac et de Photo Elysée à Plateforme 10
    Copyright: Matthieu Gafsou
  • Bâtiment du mudac et de Photo Elysée à Plateforme 10
    Copyright: Matthieu Gafsou
  • Bâtiment du mudac et de Photo Elysée à Plateforme 10
  • Bâtiment du mudac et de Photo Elysée à Plateforme 10
    Copyright: Matthieu Gafsou
  • Bâtiment du mudac et de Photo Elysée à Plateforme 10
    Copyright: Matthieu Gafsou
  • Bâtiment du mudac et de Photo Elysée à Plateforme 10
    Copyright: Gammuto Sàrl
  • Bâtiment du mudac et de Photo Elysée à Plateforme 10
  • Bâtiment du mudac et de Photo Elysée à Plateforme 10
    Copyright: Matthieu Gafsou
  • Bâtiment du mudac et de Photo Elysée à Plateforme 10
    Copyright: Matthieu Gafsou
  • Bâtiment du mudac et de Photo Elysée à Plateforme 10
    Copyright: Matthieu Gafsou
  • Kunstquartier PLATEFORME 10 – WB: Pôle Muséal – Musée de Design et d’Arts appliqués contemporains & Musée cantonal de la Photographie
    Copyright: Aires Mateus e Associados, Lissabon
  • Kunstquartier PLATEFORME 10 – WB: Pôle Muséal – Musée de Design et d’Arts appliqués contemporains & Musée cantonal de la Photographie
    Copyright: Aires Mateus e Associados, Lissabon
  • Kunstquartier PLATEFORME 10 – WB: Pôle Muséal – Musée de Design et d’Arts appliqués contemporains & Musée cantonal de la Photographie
    Copyright: Aires Mateus e Associados, Lissabon
  • Kunstquartier PLATEFORME 10 – WB: Pôle Muséal – Musée de Design et d’Arts appliqués contemporains & Musée cantonal de la Photographie
    Copyright: Aires Mateus e Associados, Lissabon
  • Kunstquartier PLATEFORME 10 – WB: Pôle Muséal – Musée de Design et d’Arts appliqués contemporains & Musée cantonal de la Photographie
    Copyright: Aires Mateus e Associados, Lissabon
  • Kunstquartier PLATEFORME 10 – WB: Pôle Muséal – Musée de Design et d’Arts appliqués contemporains & Musée cantonal de la Photographie
    Copyright: Aires Mateus e Associados, Lissabon
  • Kunstquartier PLATEFORME 10 – WB: Pôle Muséal – Musée de Design et d’Arts appliqués contemporains & Musée cantonal de la Photographie
    Copyright: Aires Mateus e Associados, Lissabon
  • Kunstquartier PLATEFORME 10 – WB: Pôle Muséal – Musée de Design et d’Arts appliqués contemporains & Musée cantonal de la Photographie
    Copyright: Aires Mateus e Associados, Lissabon
02/2018


In Lausanne entsteht gegenwärtig ein neues Museumsquartier. Gegenstand des Wettbewerbs war das Musée cantonal de la Photographie sowie das Musée de Design et d‘Arts appliqués contemporaines. Diese beiden neuen Museen sollen das Quartier, auf dem sich auch das Musée  cantonal des Beaux-Arts befinden wird, harmonisch komplettieren und die Identität des ganzen Ortes stärken. Das Museumsquartier soll mit seinen Neubauten ein Kulturviertel für das neue Jahrtausend werden, das auch durch seine Architektur besticht und sich mühelos in den urbanen Charakter seine Umgebung anpasst. Diesen Wettbewerb haben Aires Mateus & Associados aus Lissabon im September 2015 gewonnen. Inzwischen haben sie den Bauauftrag erhalten und wurden mit den wichtigsten Leistungsphasen beauftragt. Der Baubeginn ist für 2018 anvisiert, man rechnet mit einer zirka dreijährigen Laufzeit. Im Vergleich zum Wettbewerbsentwurf haben sich nur kleinere Änderungen ergeben, das Gesamtkonzept kann wie im Entwurf vorgesehen umgesetzt werden. Die Fertigstellung soll 2021 erfolgen. 

1. Rang

Aires Mateus & Associados, LDA, 1250-250 Lisboa
Afaconsult – Proafa – Serviços Engenharia SA, Vila Nova de Gaia, Portugal
  • Kunstquartier PLATEFORME 10 – WB: Pôle Muséal – Musée de Design et d’Arts appliqués contemporains & Musée cantonal de la Photographie
  • Kunstquartier PLATEFORME 10 – WB: Pôle Muséal – Musée de Design et d’Arts appliqués contemporains & Musée cantonal de la Photographie | © Aires Mateus & Associados, Lissabon
  • Kunstquartier PLATEFORME 10 – WB: Pôle Muséal – Musée de Design et d’Arts appliqués contemporains & Musée cantonal de la Photographie | © Aires Mateus & Associados, Lissabon
  • Kunstquartier PLATEFORME 10 – WB: Pôle Muséal – Musée de Design et d’Arts appliqués contemporains & Musée cantonal de la Photographie | © Aires Mateus & Associados, Lissabon
  • Kunstquartier PLATEFORME 10 – WB: Pôle Muséal – Musée de Design et d’Arts appliqués contemporains & Musée cantonal de la Photographie | © Aires Mateus & Associados, Lissabon
  • Lageplan | © Aires Mateus & Associados, Lissabon
  • Ebene -1 | © Aires Mateus & Associados, Lissabon
  • Ebene 0 | © Aires Mateus & Associados, Lissabon
  • Ebene +1 | © Aires Mateus & Associados, Lissabon
  • Fassadendetail | © Aires Mateus & Associados, Lissabon
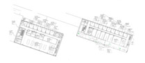
  • Lageplan
  • Ebene -1
  • Ebene 0
  • Ebene +1
  • Fassadendetail

2. Rang

Prof. Valerio Olgiati, Flims
Ferrari Gartmann AG, Chur
Gruner Gruneco AG, Basel
Hefti · Jess · Martignoni, Zürich L.Arch.: Maurus Schifferli, Bern Gartenmann Engineering AG, Basel
  • Kunstquartier PLATEFORME 10 – WB: Pôle Muséal – Musée de Design et d’Arts appliqués contemporains & Musée cantonal de la Photographie | © Prof. Valerio Olgiati, Flims
  • Kunstquartier PLATEFORME 10 – WB: Pôle Muséal – Musée de Design et d’Arts appliqués contemporains & Musée cantonal de la Photographie | © Prof. Valerio Olgiati, Flims
  • Kunstquartier PLATEFORME 10 – WB: Pôle Muséal – Musée de Design et d’Arts appliqués contemporains & Musée cantonal de la Photographie | © Prof. Valerio Olgiati, Flims
  • Lageplan | © Prof. Valerio Olgiati, Flims
  • Grundriss -2 | © Prof. Valerio Olgiati, Flims
  • Grundriss E -1 | © Prof. Valerio Olgiati, Flims
  • Grundriss E 0 | © Prof. Valerio Olgiati, Flims
  • Grundriss E +1 | © Prof. Valerio Olgiati, Flims
  • Grundriss E +2 | © Prof. Valerio Olgiati, Flims
  • Grundriss E +3 | © Prof. Valerio Olgiati, Flims
  • Ansicht Ost | © Prof. Valerio Olgiati, Flims
  • Schnitt/Ansicht Ost | © Prof. Valerio Olgiati, Flims
  • Ansicht Süd | © Prof. Valerio Olgiati, Flims
  • Schnitt | © Prof. Valerio Olgiati, Flims
  • Schnitt/Ansicht Nord | © Prof. Valerio Olgiati, Flims
  • Schnitt/Ansicht Süd | © Prof. Valerio Olgiati, Flims
  • Fassadenetail | © Prof. Valerio Olgiati, Flims
  • Lageplan
  • Grundriss -2
  • Grundriss E -1
  • Grundriss E 0
  • Grundriss E +1
  • Grundriss E +2
  • Grundriss E +3
  • Ansicht Ost
  • Schnitt/Ansicht Ost
  • Ansicht Süd
  • Schnitt
  • Schnitt/Ansicht Nord
  • Schnitt/Ansicht Süd
  • Fassadenetail

3. Rang

Caruso St John Architects, London
Gartmann Schmed & Partner AG, Chur Kalt + Halbeisen Ingenieurbüro AG, Zürich Bakus Bauphysik & Akustik GmbH, Zürich
  • Kunstquartier PLATEFORME 10 – WB: Pôle Muséal – Musée de Design et d’Arts appliqués contemporains & Musée cantonal de la Photographie | © Caruso St John Architects, London
  • Kunstquartier PLATEFORME 10 – WB: Pôle Muséal – Musée de Design et d’Arts appliqués contemporains & Musée cantonal de la Photographie | © Caruso St John Architects, London
  • Ausstellung | © Caruso St John Architects, London
  • Ausstellung | © Caruso St John Architects, London
  • Ansicht Süden | © Caruso St John Architects, London
  • Lageplan | © Caruso St John Architects, London
  • Grundriss Untergeschoss | © Caruso St John Architects, London
  • Grundriss Erdgeschoss | © Caruso St John Architects, London
  • Grundriss Obergeschoss 1, 2 und 3 | © Caruso St John Architects, London
  • Längs- und Querschnitt | © Caruso St John Architects, London
  • Fassadendetail | © Caruso St John Architects, London
  • Ausstellung
  • Ausstellung
  • Ansicht Süden
  • Lageplan
  • Grundriss Untergeschoss
  • Grundriss Erdgeschoss
  • Grundriss Obergeschoss 1, 2 und 3
  • Längs- und Querschnitt
  • Fassadendetail

4. Rang

Ateliers Jean Nouvel, Paris
EMA Architectes Associés SA, Genf T-Ingénierie SA, Genf
Pierre Chuard Ingénieurs-conseils SA, Le Mont-S/Lausanne
  • Kunstquartier PLATEFORME 10 – WB: Pôle Muséal – Musée de Design et d’Arts appliqués contemporains & Musée cantonal de la Photographie | © Ateliers Jean Nouvel, Paris
  • Kunstquartier PLATEFORME 10 – WB: Pôle Muséal – Musée de Design et d’Arts appliqués contemporains & Musée cantonal de la Photographie | © Ateliers Jean Nouvel, Paris
  • Kunstquartier PLATEFORME 10 – WB: Pôle Muséal – Musée de Design et d’Arts appliqués contemporains & Musée cantonal de la Photographie | © Ateliers Jean Nouvel, Paris
  • Kunstquartier PLATEFORME 10 – WB: Pôle Muséal – Musée de Design et d’Arts appliqués contemporains & Musée cantonal de la Photographie | © Ateliers Jean Nouvel, Paris
  • Kunstquartier PLATEFORME 10 – WB: Pôle Muséal – Musée de Design et d’Arts appliqués contemporains & Musée cantonal de la Photographie | © Ateliers Jean Nouvel, Paris
  • Kunstquartier PLATEFORME 10 – WB: Pôle Muséal – Musée de Design et d’Arts appliqués contemporains & Musée cantonal de la Photographie | © Ateliers Jean Nouvel, Paris
  • Ansicht Süd | © Ateliers Jean Nouvel, Paris
  • Kunstquartier PLATEFORME 10 – WB: Pôle Muséal – Musée de Design et d’Arts appliqués contemporains & Musée cantonal de la Photographie | © Ateliers Jean Nouvel, Paris
  • Lageplan | © Ateliers Jean Nouvel, Paris
  • Grundriss Erdgeschoss | © Ateliers Jean Nouvel, Paris
  • Grundriss 1. OG | © Ateliers Jean Nouvel, Paris
  • Dachaufsicht | © Ateliers Jean Nouvel, Paris
  • Schnitt CC | © Ateliers Jean Nouvel, Paris
  • Schnitt AA | © Ateliers Jean Nouvel, Paris
  • Fassadendetail | © Ateliers Jean Nouvel, Paris
  • Ansicht Süd
  • Lageplan
  • Grundriss Erdgeschoss
  • Grundriss 1. OG
  • Dachaufsicht
  • Schnitt CC
  • Schnitt AA
  • Fassadendetail

5. Rang

Gigon + Guyer Architekten AG, Zürich
Walt + Galmarini AG, Zürich
Peter Berchtold, Sarnen
Bakus Bauphysik & Akustik GmbH, Zürich
  • Kunstquartier PLATEFORME 10 – WB: Pôle Muséal – Musée de Design et d’Arts appliqués contemporains & Musée cantonal de la Photographie | © Gigon + Guyer Architekten AG, Zürich
  • Kunstquartier PLATEFORME 10 – WB: Pôle Muséal – Musée de Design et d’Arts appliqués contemporains & Musée cantonal de la Photographie | © Gigon + Guyer Architekten AG, Zürich
  • Kunstquartier PLATEFORME 10 – WB: Pôle Muséal – Musée de Design et d’Arts appliqués contemporains & Musée cantonal de la Photographie | © Gigon + Guyer Architekten AG, Zürich
  • Kunstquartier PLATEFORME 10 – WB: Pôle Muséal – Musée de Design et d’Arts appliqués contemporains & Musée cantonal de la Photographie | © Gigon + Guyer Architekten AG, Zürich
  • Kunstquartier PLATEFORME 10 – WB: Pôle Muséal – Musée de Design et d’Arts appliqués contemporains & Musée cantonal de la Photographie
  • Lageplan | © Gigon + Guyer Architekten AG, Zürich
  • Grundriss UG | © Gigon + Guyer Architekten AG, Zürich
  • Grundriss Erdgeschoss | © Gigon + Guyer Architekten AG, Zürich
  • Grundriss 1. + 2. OG | © Gigon + Guyer Architekten AG, Zürich
  • Grundriss 3. OG | © Gigon + Guyer Architekten AG, Zürich
  • Ansicht Ost | © Gigon + Guyer Architekten AG, Zürich
  • Ansicht West | © Gigon + Guyer Architekten AG, Zürich
  • Ansicht Süd | © Gigon + Guyer Architekten AG, Zürich
  • Längs- und Querschnitt | © Gigon + Guyer Architekten AG, Zürich
  • Fassadendetail | © Gigon + Guyer Architekten AG, Zürich
  • Lageplan
  • Grundriss UG
  • Grundriss Erdgeschoss
  • Grundriss 1. + 2. OG
  • Grundriss 3. OG
  • Ansicht Ost
  • Ansicht West
  • Ansicht Süd
  • Längs- und Querschnitt
  • Fassadendetail

6. Rang

SANAA Kazuyo Sejima + Ryue Nishizawa , Shinagawa-Ku, Tokyo
Architram Architecture et Urbanisme, Rennes Bollinger + Grohmann Sàrl, Paris
CSD Ingénieurs SA, Lausanne
Transsolar Klimaengineering, Stuttgart
  • Kunstquartier PLATEFORME 10 – WB: Pôle Muséal – Musée de Design et d’Arts appliqués contemporains & Musée cantonal de la Photographie | © SANAA Kazuyo Sejima + Ryue Nishizawa , Shinagawa-Ku, Tokyo
  • Kunstquartier PLATEFORME 10 – WB: Pôle Muséal – Musée de Design et d’Arts appliqués contemporains & Musée cantonal de la Photographie | © SANAA Kazuyo Sejima + Ryue Nishizawa , Shinagawa-Ku, Tokyo
  • Kunstquartier PLATEFORME 10 – WB: Pôle Muséal – Musée de Design et d’Arts appliqués contemporains & Musée cantonal de la Photographie | © SANAA Kazuyo Sejima + Ryue Nishizawa , Shinagawa-Ku, Tokyo
  • Kunstquartier PLATEFORME 10 – WB: Pôle Muséal – Musée de Design et d’Arts appliqués contemporains & Musée cantonal de la Photographie | © SANAA Kazuyo Sejima + Ryue Nishizawa , Shinagawa-Ku, Tokyo
  • Kunstquartier PLATEFORME 10 – WB: Pôle Muséal – Musée de Design et d’Arts appliqués contemporains & Musée cantonal de la Photographie | © SANAA Kazuyo Sejima + Ryue Nishizawa , Shinagawa-Ku, Tokyo
  • Kunstquartier PLATEFORME 10 – WB: Pôle Muséal – Musée de Design et d’Arts appliqués contemporains & Musée cantonal de la Photographie | © SANAA Kazuyo Sejima + Ryue Nishizawa , Shinagawa-Ku, Tokyo
  • Kunstquartier PLATEFORME 10 – WB: Pôle Muséal – Musée de Design et d’Arts appliqués contemporains & Musée cantonal de la Photographie | © SANAA Kazuyo Sejima + Ryue Nishizawa , Shinagawa-Ku, Tokyo
  • Lageplan | © SANAA Kazuyo Sejima + Ryue Nishizawa , Shinagawa-Ku, Tokyo
  • Grundriss UG 1 | © SANAA Kazuyo Sejima + Ryue Nishizawa , Shinagawa-Ku, Tokyo
  • Grundriss EG | © SANAA Kazuyo Sejima + Ryue Nishizawa , Shinagawa-Ku, Tokyo
  • Grundriss OG 1 | © SANAA Kazuyo Sejima + Ryue Nishizawa , Shinagawa-Ku, Tokyo
  • Grundriss OG 2 | © SANAA Kazuyo Sejima + Ryue Nishizawa , Shinagawa-Ku, Tokyo
  • Schnitt AA, Schnitt BB | © SANAA Kazuyo Sejima + Ryue Nishizawa , Shinagawa-Ku, Tokyo
  • Ansicht Süd | © SANAA Kazuyo Sejima + Ryue Nishizawa , Shinagawa-Ku, Tokyo
  • Lageplan
  • Grundriss UG 1
  • Grundriss EG
  • Grundriss OG 1
  • Grundriss OG 2
  • Schnitt AA, Schnitt BB
  • Ansicht Süd
Verfahrensart
Selektiver Projektwettbewerb

Wettbewerbsaufgabe
In Lausanne entsteht gegenwärtig ein neues Museumsquartier: Mehrere namhafte Institutionen werden hier auf dem Geländes eines alten Güterbahnhofes zusammengefasst. Gegenstand dieses Wettbewerbs ist das Musée cantonal de la Photographie (Musée de l’Elysée) sowie das Musée de Design et d’Arts appliqués contemporains (mudac). Diese beiden neuen Museen sollen das Quartier – auf dem sich auch das Musée cantonal des Beaux-Arts befinden wird (Baubeginn in Kürze) – harmonisch komplettieren. Aufgabe ist es nun, durch den Neubau diese beiden Museen mit dem dritten zu einem kohärenten Ganzen zu verbinden, zugleich aber ihre jeweilige Individualität zu unterstreichen und die Identität des gesamten Orts zu stärken.
Ziel ist es, den Austausch und die wechselseitige Bereicherung der drei Museen zu fördern und den Besuchern ein einzigartiges Erlebnis zu bieten. Dabei gehören bestimmte Bereiche ins gemeinsame Raumprogramm der Museen, darunter beispielsweise die Bibliothek, ein Café/ Restaurant, ein Buchladen, Gewerbeflächen. Außerdem wird die Möglichkeit von Synergiebildungen angestrebt, damit künftig auch kommunale Nutzer von den Räumlichkeiten für Vernissagen, Tagungen, Konferenzen u.v.m. profitieren können. Die mannigfaltigen Inspirationsmöglichkeiten, die diese drei Museen einer breiten Öffentlichkeit ermöglichen, sollen sich gleichsam auch auf einer übergeordneten Ebene wiederfinden: Denn das Museumsquartier soll mit seinen Neubauten ein Kulturviertel für das neue Jahrtausend werden, das auch durch seine architektonischen Sehenswürdigkeiten besticht und sich mühelos in den urbanen Charakter seiner Umgebung anpasst. Einer Umgebung, die geprägt ist durch Industrie- und Wohnbebauung, rhythmisiert wird durch die vorbeibrausenden Züge und die vielen nahen Geschäfte.

Competition assignment
At present, a new museum quarter is being created in Lausanne. Several institutions will be merged on a site of a former freight yard. The competition comprises the Museum of Photography (Musée de l’Elysée) and the Museum of Contemporary Design and Applied Arts (mudac). Both museums shall complement the quarter, together with the future Musée Cantonal des Beaux-Arts, to connect all three buildings to a coherent whole. At the same time, each museum shall emphasize its own individuality and strengthen the identity of the museum quarter. The three museums shall promote mutual exchange and offer visitors a unique experience. Certain sections belong to the common spatial program of the museums, such as a library, café/restaurant, bookshop and commercial space. Also synergies are envisaged, such as the public can avail of space for previews, events, conferences etc. All the museums’ manifold possibilities of inspiration are open to the wider public and shall also be retrieved on a higher level: the museum quarter with its new buildings shall become a cultural district for the new millennium that impresses with its architectural sights and blends easily into the urban fabric, characterized by industrial and residen- tial buildings and given rhythm by passing trains and the many stores nearby.

Preisrichter
Olivier Steimer, Fondation de Soutien à la Plate-Forme Pôle muséal (Vors.)
David Chipperfield, London
Kengo Kuma, Tokio
Uli Sigg, Sigg Collection
Jean Claude Gandur, Fondation Gandur
Pierre-Luc Maillefer, Fondation Leenaards
Chantal Prod’Hom, Mudac
Tatyana Franck, Musée de L’Élysée
Pierre Keller, Pôle Musál/État de Vaud
Daniel Brélaz, Ville de Lausanne
Eric Hoesli, Journalist
Vera Michalski, Fondation Jan Michalski
Pierre-Marcel Favre, Editor
Fabrizio Barozzi, Barcelona
Emmanuel Ventura, État de Vaud
Patrick Devanthéry, Genf
Silvia Gmür, Basel
Alexadnre Blanc, Lausanne
Jean-Gilles Décosterd, Lausanne
Laurent Staffelbach, Lausanne
Christophe Guignard, Lausanne
Pierre Feddersen, Zürich
Olivier Français, Lausanne

Preisgerichtsempfehlung
Das Preisgericht empfiehlt das Projekt des 1. Rang/1. Preis zur Weiterbearbeitung.

Weitere Ergebnisse zum Thema

Jetzt Abonnent werden um alle Bilder zu sehen

jetzt abonnieren

Schon wa Abonnent?
Bitte einloggen