Wettbewerbe für Architekten und Ingenieure, Landschaftsarchitekten, Architektur Studenten Wettbewerbe für Architekten und Ingenieure, Landschaftsarchitekten, Architektur Studenten
X

NEU: Bitte beachten Sie, dass Sie sich ab sofort mit E-Mail und Passwort einloggen.

Passwort erneuern
Neu registrieren

  • Entwicklung des Stammgeländes Sonnenhof e.V.
  • Entwicklung des Stammgeländes Sonnenhof e.V.
  • Entwicklung des Stammgeländes Sonnenhof e.V.
  • Entwicklung des Stammgeländes Sonnenhof e.V.
  • 1. Preis: citiplan GmbH, Pfullingen
  • 2. Preis: ARP ArchitektenPartnerschaft GbR, Stuttgart
  • 3. Preis: Kittelberger, Holzgerlingen
  • Anerkennung: Labor für urbane Orte und Prozesse, Stuttgart

Entwicklung des Stammgeländes Sonnenhof e.V. , Schwäbisch Hall/ Deutschland

Architektur Wettbewerbs-Ergebnis

Veröffentlicht als:

Kurzergebnis
wa-ID
wa-2014110
Tag der Veröffentlichung
11.11.2015
Aktualisiert am
01.02.2016
Verfahrensart
Nicht offener Wettbewerb
Beteiligung
11 Arbeiten
Auslober
Koordination
schreiberplan Architekten, Stadtplaner, Landschaftsarchitekten, Stuttgart
Preisgerichtssitzung
11.11.2015

Wie lautet der dritte Buchstabe von "wettbewerbe"?

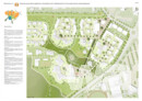
1. Preis

citiplan GmbH, Pfullingen
Arch.: Riehle+Assoziierte, Reutlingen
Freiraumplanung Sigmund, Grafenberg
  • 1. Preis: citiplan GmbH, Pfullingen
  • 1. Preis: citiplan GmbH, Pfullingen
  • 1. Preis: citiplan GmbH, Pfullingen
  • 1. Preis: citiplan GmbH, Pfullingen

2. Preis

ARP ArchitektenPartnerschaft GbR, Stuttgart
  • 2. Preis: ARP ArchitektenPartnerschaft GbR, Stuttgart
  • 2. Preis: ARP ArchitektenPartnerschaft GbR, Stuttgart
  • 2. Preis: ARP ArchitektenPartnerschaft GbR, Stuttgart
  • 2. Preis: ARP ArchitektenPartnerschaft GbR, Stuttgart

3. Preis

Kittelberger, Holzgerlingen
Arch.: Hähnig-Gemmeke, Tübingen
Stefan Fromm Dipl.-Ing. Freier Landschaftsarchitekt BDLA, Dettenhausen
  • 3. Preis: Kittelberger, Holzgerlingen
  • 3. Preis: Kittelberger, Holzgerlingen
  • 3. Preis: Kittelberger, Holzgerlingen
  • 3. Preis: Kittelberger, Holzgerlingen

Anerkennung

Blanekarchitekten, Stuttgart
Jan Blanek
  • Anerkennung: Blanekarchitekten, Stuttgart
  • Anerkennung: Blanekarchitekten, Stuttgart
  • Anerkennung: Blanekarchitekten, Stuttgart
  • Anerkennung: Blanekarchitekten, Stuttgart

Anerkennung

Labor für urbane Orte und Prozesse, Stuttgart
Matthias Bauer - MBA/S, Stuttgart
  • Anerkennung: Labor für urbane Orte und Prozesse, Stuttgart
  • Anerkennung: Labor für urbane Orte und Prozesse, Stuttgart
  • Anerkennung: Labor für urbane Orte und Prozesse, Stuttgart
  • Anerkennung: Labor für urbane Orte und Prozesse, Stuttgart
Verfahrensart
Nicht offener städtebaulicher freiraumplanerischer Ideenwettbewerb nach RPW 2013

Wettbewerbsaufgabe
Der Sonnenhof e.V. plant die Entwicklung seines Stammgeländes im Sudentenweg 92 in Schwäbisch Hall. Das Areal mit rund 10 ha soll im Sinne der inklusiven Gesellschaft mit den angrenzenden Stadtteilen besser vernetzt werden.

Weitere Ergebnisse zum Thema

Jetzt Abonnent werden um alle Bilder zu sehen

jetzt abonnieren

Schon wa Abonnent?
Bitte einloggen