Wettbewerbe für Architekten und Ingenieure, Landschaftsarchitekten, Architektur Studenten Wettbewerbe für Architekten und Ingenieure, Landschaftsarchitekten, Architektur Studenten
X

NEU: Bitte beachten Sie, dass Sie sich ab sofort mit E-Mail und Passwort einloggen.

Passwort erneuern
Neu registrieren

  • Sanierung/Erweiterung des Jüdischen Museums
  • Sanierung/Erweiterung des Jüdischen Museums
  • Modellfoto
    Copyright: stadt.bau.plan. GmbH, Darmstadt
  • Schnitt Neubau

Sanierung/Erweiterung des Jüdischen Museums , Frankfurt am Main/ Deutschland

Architektur Wettbewerbs-Ergebnis

Sie sind Abonnent? einloggen

Veröffentlicht als:

Dokumentation
Zwischenbericht
Weiterverfolgt
wa-ID
wa-2012624
Tag der Veröffentlichung
04.12.2012
Aktualisiert am
27.11.2020
Verfahrensart
Nicht offener Wettbewerb
Beteiligung
19 Arbeiten
Auslober
Koordination
stadt.bau.plan GmbH, Darmstadt
Bewerbungsschluss
26.07.2012
Abgabetermin Pläne
29.10.2012
Abgabetermin Modell
05.11.2012
Preisgerichtssitzung
04.12.2012
Fertigstellung
10/2020

Wie lautet der dritte Buchstabe von "wettbewerbe"?


Fertigstellung - Oktober 2020

Bauherr/Client: Stadt Frankfurt am Main, vertreten durch den Magistrat Kulturamt

Projektdaten
Planungsbeginn – Fertigstellung: 10/13 – 08/20
NUF: 4.700 m2
BGF: 8.100 m2
BRI: 34.700 m3
Leistungsphasen: 2–8
Gesamtbaukosten: 46,7 Mio €

Standort/Location: Bertha-Pappenheim-Platz 1, 60311 Frankfurt a.M.

Team Wettbewerb
Petra Wäldle, Fabian Reinsch, Veit Eckelt, Dovile Kriksciunaite
Team Realisierung
Projektkoordination: Per Pedersen,
Projektleitung: Anke Hafner
Mitarbeit: Fabian Reinsch, Marion Rehn, Leila Reese, Johannes Pape, Moritz Grabmayr, Mirjam von Busch, Anna Hüper, Zuzanna Kaluzna, Thomas Eysholdt, Nicole Lochocki, Jens Achtermann, Hagen Groß, Sarah Papen, Alexander Böhme, Thomas Schmidt, Patrick Naumann, Roberto Zitelli, Georg Hana, Bastian Gerner
Projektkoordination Ausschreibung/Bauleitung:
Sabine Zoske, Axel Michaelis
Ausschreibung/Vergabe: Manuela Jocheim, Nina Gromoll


Fachplaner/Engineers
Bauleitung: schneider + schumacher Planungsgesellschaft mbH, Frankfurt a.M.
Tragwerksplanung: Leonhardt, Andrä + Partner AG Beratende Ingenieure VBI AG, Stuttgart
Freiraumplanung: ST Raum A Gesellschaft von Landschaftsarchitekten mbH, Berlin
Haustechnik (HLSE + Fördertechnik): Winkels Behrens + Pospich Ingenieure für Haustechnik GmbH, Münster
Tages- und Kunstlichtplanung: Licht Kunst Licht AG, Berlin
Sicherheitstechnik: Siganet GmbH, Ibbenbühren
Museografie: Space 4, Stuttgart + Team Stratenwerth, Basel
Brandschutz: Lenz Weber Ingenieure GmbH, Frankfurt a.M.
Bauphysik: Müller BBM GmbH, Planegg
Kosten- und Terminplanung: Staab Architekten GmbH


Mit dem Erweiterungsbau wendet sich das Jüdische Museum einem größeren Publikum zu. Ein Bereich für Vorträge und Symposien, eine Fachbibliothek, Wechselausstellungen und ein Café bilden neben Werkstätten und Verwaltungsräumen die Bestandteile des ambitionierten Raumprogramms, das die Dauerausstellung in den historischen Gebäuden am Mainufer ergänzt.

Zwei Zeiten, ein Ensemble
Das Baugrundstück im Garten der klassizistischen Palais liegt städtebaulich gesehen auf der Rückseite der Altbauten. Um den Erweiterungsbau mit dem neuen Haupteingang wirksam zu platzieren, ohne die historische Staffelung aus Villenzeile, Gärten und Wirtschaftsgebäuden aufzugeben, wurde der Neubau mit Abstand zu den Altbauten als Solitär konzipiert. Zu den seitlich gelegenen Wallanlagen hin wird er mit den Altbauten jedoch als Ensemble wahrgenommen, das einen Platzraum fasst, der als neuer Eingangshof und zukünftige Adresse des Museums dient.
Der Neubau ist so zugeschnitten, dass sich der Platzraum zu den Wallanlagen hin öffnet und in der Tiefe des Grundstücks schließt. Auf den öffentlichen Vorplatz folgt, der vorhandenen Senke des Grundstücks entsprechend, ein kleiner abgesenkter Garten, der von einer erhöhten Caféterrasse begrenzt wird. Unter der Terrasse verläuft die Verbindung des Neubaus zu den Altbauten. Diese feine Höhendifferenzierung des Geländes erzeugt unterschiedliche Außenräume und löst gleichzeitig komplexe funktionale Zusammenhänge von Neubau und Bestand.

Ein unerwartetes Raumerlebnis
Ergeben sich die Außenkanten des Erweiterungsbaus vornehmlich aus der städtebaulichen Situation, so folgt das Innere einer klaren räumlichen Idee. Ausgehend von einem Monolith, der ein Gegengewicht zu den klassizistischen Bestandsbauten zu bildet, wurde aus dem Neubauvolumen eine zentrale Halle herausgeschnitten, in der sich die gesamte Programmatik des Hauses auf einen Blick erschließt. Gelangt man vom Haupteingang in die Halle, zeigt sich geradeaus der Veranstaltungsbereich mit einem kleinen Foyer. Seitlich rückte eine breite Treppe ins den Blick, die den Weg zur Dauerausstellung in den Altbauten und zur Wechselausstellung im Untergeschoss weist. Darüber sieht man durch Fenster in das Café und die Bibliothek. Die großen Sichtbetonoberflächen und der freie Raumzuschnitt rufen einen geradezu archaischen Raumeindruck hervor, dessen Wirkung durch den Lichteinfall von oben noch gesteigert wird. Von dieser Mitte aus finden die Besucher intuitiv den Weg zu den unterschiedlichen Angeboten des Museums, sei es auf den verschiedenen Ebenen des Neubaus oder in den historischen Gebäuden am Mainufer.
Die Fassade des Neubaus spiegelt seine Entstehungszeit wider, greift aber mit der Putzfarbe, der Betonung des Sockels und der horizontale Gliederung der Fassade Charakteristika der klassizistischen Altbaufassaden auf. So wird die Ensemblewirkung der beiden Gebäudeteile auf verschiedenen Ebenen gestärkt: städtebaulich durch die Balance der Baukörper und die Rahmung des neuen Eingangshofes, funktional durch die gemeinsame Wegeführung und auf Fassadenebene durch einen spannungsvollen Dialog zwischen Alt und Neu.

Behutsame Wiederherstellung der Palais
Die historische Struktur der Altbauten wurde im Zuge der Sanierung wieder lesbar gemacht, Einbauten aus den 1980er Jahren zurückgebaut. Die gut erhaltenen Räume im Rothschild-Palais wurden restauriert, stellenweise behutsam ergänzt und mit den Räumen im Nachbargebäude zu einem Museumsrundgang verbunden. Die Atmosphäre der historisch ausgestatteten Räume im Rothschild-Palais kontrastiert mit den Museumsräumen im Palais am Untermainkai 14, das keine bauzeitlichen Oberflächen mehr aufwies. Hier wurden die Räume in heutiger Architektursprache zurückhaltend ergänzt. Von außen nicht sichtbar wurden am Übergang zu den Altbauten zwei Aufzüge integriert, die alle Ausstellungsflächen in den historischen Gebäuden barrierefrei zugänglich machen.

-----------------------------------------------------------
Zwischenstand des Projektes – November 2014

Staab Architekten GmbH aus Berlin haben im Wettbewerb einen von zwei zweiten Preis gewonnen und konnten sich in der zweiten Wettbewerbsphase mit ihrer Überarbeitung durchsetzen: Sie haben den Auftrag erhalten und und wurden inzwischen mit den Leistungsphasen 2-5 betraut. Die Planungsphase dauert bei diesem Projekt bis 2015, die Bauzeit zirka zwei Jahre, sodass man gegenwärtig mit einer voraussichtlichen Fertigstellung für 2017 rechnet. Zum ursprünglichen Wettbewerbsentwurf ergaben sich Änderungen durch die Überarbeitung. Die Abbildung entspricht dem Stand der 2. Wettbewerbsphase.

-----------------------------------------------------------

Planmaterial des fertigen Projekts:

  • Lageplan
  • Lageplan
  • 2. Preis: Staab Architekten GmbH, Berlin
  • 2. Preis: Staab Architekten GmbH, Berlin
  • 2. Preis: Staab Architekten GmbH, Berlin
  • 2. Preis: Staab Architekten GmbH, Berlin
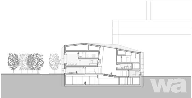
  • Schnitt Neubau
  • Schnitt Übergang
  • Schnitt Vorplatz
  • Lageplan
  • Lageplan
  • 2. Preis: Staab Architekten GmbH, Berlin
  • 2. Preis: Staab Architekten GmbH, Berlin
  • 2. Preis: Staab Architekten GmbH, Berlin
  • 2. Preis: Staab Architekten GmbH, Berlin
  • Schnitt Neubau
  • Schnitt Übergang
  • Schnitt Vorplatz

2. Preis

TRU Architekten Part mbB, Berlin
Sandra Töpfer · Dirk Bertuleit
Mitarbeit: Katrin Wünsche
L.Arch.: HL-Heilbronner Lachkareff Landschaftsarchitekten
  • Modellfoto
  • Museumsvorplatz mit Haupteingang
  • Blick von der Wilhelm-Leuschner-Straße
  • Lageplan
  • Grundriss EG
  • Grundriss 1. OG
  • Grundriss UG
  • Ansicht
  • Querschnitt
  • Längsschnitt
  • Modellfoto
  • Museumsvorplatz mit Haupteingang
  • Blick von der Wilhelm-Leuschner-Straße
  • Lageplan
  • Grundriss EG
  • Grundriss 1. OG
  • Grundriss UG
  • Ansicht
  • Querschnitt
  • Längsschnitt

2. Preis

Staab Architekten GmbH, Berlin
Volker Staab
Mitarbeit: Petra Wäldle · Fabian Reinsch
Dovile Kriksciunaite · Veit Eckelt
Haustechnik: Winkels · Behrens · Pospich
  • Modellfoto
  • Eingangsperspektive
  • Lageplan
  • Grundriss UG
  • Grundriss EG
  • Grundriss 1. OG
  • Schnitt 1-1
  • Schnitt 2-2
  • Ansicht von Norden
  • Ansicht von Westen
  • Modellfoto
  • Eingangsperspektive
  • Lageplan
  • Grundriss UG
  • Grundriss EG
  • Grundriss 1. OG
  • Schnitt 1-1
  • Schnitt 2-2
  • Ansicht von Norden
  • Ansicht von Westen

3. Preis

gmp Architekten von Gerkan · Marg und Partner, Berlin
Hubert Nienhoff
Mitarbeit: S. Schneider · K. Godejohann
Ch. Wermers · E. Rodriguez Contreras
P. Weber · F. Illenberger · K. Spencker
L.Arch.: Capatti · Staubach Landschaftsarch. Tragwerk: HMI
Gebäudetechnik: BIG
Visualisierung: Davide Abbonacci
  • Modellfoto
  • 3. Preis: gmp Architekten von Gerkan · Marg und Partner, Berlin
  • 3. Preis: gmp Architekten von Gerkan · Marg und Partner, Berlin
  • Lageplan
  • Grundriss UG
  • Grundriss EG
  • Grundriss 1. OG
  • Ansicht Süden
  • Ansicht Westen
  • Ansicht Norden
  • Ansicht Osten
  • Längsschnitt
  • Querschnitt
  • Modellfoto
  • 3. Preis: gmp Architekten von Gerkan · Marg und Partner, Berlin
  • 3. Preis: gmp Architekten von Gerkan · Marg und Partner, Berlin
  • Lageplan
  • Grundriss UG
  • Grundriss EG
  • Grundriss 1. OG
  • Ansicht Süden
  • Ansicht Westen
  • Ansicht Norden
  • Ansicht Osten
  • Längsschnitt
  • Querschnitt

Anerkennung

Sunder-Plassmann Architekten, Kappeln
Gregor Sunder-Plassmann
Mitarbeit: St. Kaindl · N. Fichtl · M. Krekeler
Fachplaner: Winter Ingenieure Visualisierung: Robert Simonsen
  • Modellfoto
  • Modellfoto

Anerkennung

Diener & Diener Architekten, Basel
Roger Diener · Dieter Righetti
Mitarbeit: Marnie Amato · Liqun He
Corina Gisin · Harun Rashid
L.Arch.: Vogt Landschaftsarchitekten
Fachpl.: Weischede · Herrmann und Partner Transsolar Energietechnik GmbH
  • Modellfoto
  • Modellfoto

Anerkennung

AFF ARCHITEKTEN, Berlin
Martin Fröhlich · Sven Fröhlich
Sascha Schulz · Robert Zeimer
Mitarbeit: Bastin Ehrler
Fachplaner: BBS Ing.-Büro Gronau + Partner Erfurth + Matthes Ber. Ing. GmbH
  • Modellfoto
  • Modellfoto
Verfahrensart
Nicht offener Wettbewerb mit vorgeschaltetem Bewerbungsverfahren zur Auswahl von 16 Teilnehmern sowie 4 Zuladungen

Wettbewerbsaufgabe
Das Jüdische Museum Frankfurt mit den Standorten Rothschild-Palais und Museum Judengasse hat die Aufgabe, jüdische Geschichte und Kultur von der Antike bis zur Gegenwart zu vermitteln.
Seit der Eröffnung des Jüdischen Museums vor 23 Jahren sind die räumlichen und technischen Rahmenbedingungen ebenso wie die Dauerausstellung kaum verändert worden. Die Wechselausstellungsräume sind aufgrund ihrer geringen Größe und der fehlenden Klimatisierung kaum für anspruchsvolle Ausstellungsvorhaben mit hochwertigen Leihgaben geeignet. Die räumlichen Kapazitäten von Bibliothek und Depots sind erschöpft, so dass ein Ausbau der Sammlungen kaum zu verantworten ist. Gegenstand des Wettbewerbs ist die Sanierung und Neuausstattung der beiden Villen am Untermainkai 14 und 15 in Zusammenhang mit einer baulichen Erweiterung auf der dem Main abgewandten Seite hin zum Anlagenring. Es gilt die Mängel der Bestandsbauten in Bezug unter Berücksichtigung des Denkmalschutzes zu beheben. Gleichzeitig ist die Dauerausstellung im Altbau vollständig neu zu konzipieren und mit dem Neubau funktional und konzeptionell zu verknüpfen. Zugleich ergibt sich der Anspruch an den Erweiterungsbau, sich in den städtebaulichen Kontext einzupassen und dem Denkmalschutz Rechnung zu tragen.

Competition assignment
Since the opening of the Jewish Museum 23 years ago the conditions and permanent exhibition have not been changed. The rooms for temporary exhibitions are too small, without air-condition and are not suitable for ambitious exhibition projects. The spatial capacities of library and depot are exhausted. Both mansions at Untermainkai 14 and 15 have to be redeveloped and refurbished with an extension towards the Anlagenring – integrated in the urban context. The existing buildings have to be repaired in accordance with monument protection. The permanent exhibition has to get a new conceptual design linked with the new building.

Fachpreisrichter
Prof. Max Dudler, Berlin (Vors.)
Prof. Dr. Salomon Korn, Frankfurt/Main
Dieter von Lüpke, Stadtplanungsamt, F./M.
Andreas Schröder, MuseumsBausteine Frankfurt GmbH

Sachpreisrichter
Olaf Cunitz, Bürgermeister, Frankfurt am Main
Prof. Dr. Raphael Gross, Jüdisches Museum
Andreas von Schoeler, Ges. Freunde und Förderer des Jüdischen Museums Frankfurt/M.
Prof. Dr. Felix Semmelroth, Stadtrat, Frankfurt/M.

Preisgerichtsempfehlung
Das Preisgericht empfiehlt einstimmig die mit Preisen ausgezeichneten Arbeiten durch die Verfasser überarbeiten zu lassen und anschließend eine dieser Arbeiten einer Realisierung zugrunde zu legen.

Weitere Ergebnisse zum Thema

Jetzt Abonnent werden um alle Bilder zu sehen

jetzt abonnieren

Schon wa Abonnent?
Bitte einloggen