Wettbewerbe für Architekten und Ingenieure, Landschaftsarchitekten, Architektur Studenten Wettbewerbe für Architekten und Ingenieure, Landschaftsarchitekten, Architektur Studenten
X

NEU: Bitte beachten Sie, dass Sie sich ab sofort mit E-Mail und Passwort einloggen.

Passwort erneuern
Neu registrieren

  • Denver Single-Stair Housing Challenge – Affordable Housing Series #18
  • Denver Single-Stair Housing Challenge – Affordable Housing Series #18
  • Denver Single-Stair Housing Challenge – Affordable Housing Series #18
  • Denver Single-Stair Housing Challenge – Affordable Housing Series #18
  • Denver Single-Stair Housing Challenge – Affordable Housing Series #18
  • 1. Preis / 1st Prize: Anthony Barakat, Rita Alsemaani (Lebanon)
  • 2. Preis / 2nd Prize: Lisa-Marie Mélodie Deransy (France)
  • 3. Preis / 3rd Prize: Page | Shivanthi Carpino, Jacob Mckinney, Robert Court Mcclure, Alison Catherine Ledwith (USA)
  • Buildner Student Award: Beyzanur Koç, Gazi University (Turkey)
  • Buildner Sustainability Award: Uladzislau Chabai (Netherlands)

Denver Single-Stair Housing Challenge – Affordable Housing Series #18 , Denver/ Vereinigte Staaten

Architektur Wettbewerbs-Ergebnis

wa-ID
wa-2038339
Tag der Veröffentlichung
30.07.2024
Aktualisiert am
13.05.2025
Verfahrensart
Offener Wettbewerb
Zulassungsbereich
Andere
Teilnehmer
Keine Teilnahmebeschränkungen
Auslober
Bewerbungsschluss
12.12.2024
Abgabetermin
23.01.2025
Bekanntgabe
06.03.2025

Wie lautet der dritte Buchstabe von "wettbewerbe"?

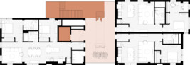
1. Preis / 1st Prize

Detached Living
Anthony Barakat, Rita Alsemaani (Lebanon)
  • 1. Preis / 1st Prize: Anthony Barakat, Rita Alsemaani (Lebanon)
  • 1. Preis / 1st Prize: Anthony Barakat, Rita Alsemaani (Lebanon)
  • 1. Preis / 1st Prize: Anthony Barakat, Rita Alsemaani (Lebanon)
  • 1. Preis / 1st Prize: Anthony Barakat, Rita Alsemaani (Lebanon)
  • 1. Preis / 1st Prize: Anthony Barakat, Rita Alsemaani (Lebanon)
  • 1. Preis / 1st Prize: Anthony Barakat, Rita Alsemaani (Lebanon)
  • 1. Preis / 1st Prize: Anthony Barakat, Rita Alsemaani (Lebanon)
  • 1. Preis / 1st Prize: Anthony Barakat, Rita Alsemaani (Lebanon)
  • 1. Preis / 1st Prize: Anthony Barakat, Rita Alsemaani (Lebanon)
  • 1. Preis / 1st Prize: Anthony Barakat, Rita Alsemaani (Lebanon)
  • 1. Preis / 1st Prize: Anthony Barakat, Rita Alsemaani (Lebanon)
  • 1. Preis / 1st Prize: Anthony Barakat, Rita Alsemaani (Lebanon)
  • 1. Preis / 1st Prize: Anthony Barakat, Rita Alsemaani (Lebanon)
  • 1. Preis / 1st Prize: Anthony Barakat, Rita Alsemaani (Lebanon)
  • 1. Preis / 1st Prize: Anthony Barakat, Rita Alsemaani (Lebanon)
  • 1. Preis / 1st Prize: Anthony Barakat, Rita Alsemaani (Lebanon)
  • 1. Preis / 1st Prize: Anthony Barakat, Rita Alsemaani (Lebanon)
  • 1. Preis / 1st Prize: Anthony Barakat, Rita Alsemaani (Lebanon)
  • 1. Preis / 1st Prize: Anthony Barakat, Rita Alsemaani (Lebanon)
  • 1. Preis / 1st Prize: Anthony Barakat, Rita Alsemaani (Lebanon)
  • 1. Preis / 1st Prize: Anthony Barakat, Rita Alsemaani (Lebanon)
  • 1. Preis / 1st Prize: Anthony Barakat, Rita Alsemaani (Lebanon)
  • 1. Preis / 1st Prize: Anthony Barakat, Rita Alsemaani (Lebanon)
  • 1. Preis / 1st Prize: Anthony Barakat, Rita Alsemaani (Lebanon)
  • 1. Preis / 1st Prize: Anthony Barakat, Rita Alsemaani (Lebanon)
  • 1. Preis / 1st Prize: Anthony Barakat, Rita Alsemaani (Lebanon)
  • 1. Preis / 1st Prize: Anthony Barakat, Rita Alsemaani (Lebanon)
  • 1. Preis / 1st Prize: Anthony Barakat, Rita Alsemaani (Lebanon)
  • 1. Preis / 1st Prize: Anthony Barakat, Rita Alsemaani (Lebanon)
  • 1. Preis / 1st Prize: Anthony Barakat, Rita Alsemaani (Lebanon)
  • 1. Preis / 1st Prize: Anthony Barakat, Rita Alsemaani (Lebanon)
  • 1. Preis / 1st Prize: Anthony Barakat, Rita Alsemaani (Lebanon)
  • 1. Preis / 1st Prize: Anthony Barakat, Rita Alsemaani (Lebanon)
  • 1. Preis / 1st Prize: Anthony Barakat, Rita Alsemaani (Lebanon)
  • 1. Preis / 1st Prize: Anthony Barakat, Rita Alsemaani (Lebanon)
  • 1. Preis / 1st Prize: Anthony Barakat, Rita Alsemaani (Lebanon)
  • 1. Preis / 1st Prize: Anthony Barakat, Rita Alsemaani (Lebanon)
  • 1. Preis / 1st Prize: Anthony Barakat, Rita Alsemaani (Lebanon)
  • 1. Preis / 1st Prize: Anthony Barakat, Rita Alsemaani (Lebanon)
  • 1. Preis / 1st Prize: Anthony Barakat, Rita Alsemaani (Lebanon)
  • 1. Preis / 1st Prize: Anthony Barakat, Rita Alsemaani (Lebanon)
  • 1. Preis / 1st Prize: Anthony Barakat, Rita Alsemaani (Lebanon)
  • 1. Preis / 1st Prize: Anthony Barakat, Rita Alsemaani (Lebanon)
  • 1. Preis / 1st Prize: Anthony Barakat, Rita Alsemaani (Lebanon)
  • 1. Preis / 1st Prize: Anthony Barakat, Rita Alsemaani (Lebanon)
  • 1. Preis / 1st Prize: Anthony Barakat, Rita Alsemaani (Lebanon)

2. Preis / 2nd Prize

Brick and bloom
Lisa-Marie Mélodie Deransy (France)
  • 2. Preis / 2nd Prize: Lisa-Marie Mélodie Deransy (France)
  • 2. Preis / 2nd Prize: Lisa-Marie Mélodie Deransy (France)
  • 2. Preis / 2nd Prize: Lisa-Marie Mélodie Deransy (France)
  • 2. Preis / 2nd Prize: Lisa-Marie Mélodie Deransy (France)
  • 2. Preis / 2nd Prize: Lisa-Marie Mélodie Deransy (France)
  • 2. Preis / 2nd Prize: Lisa-Marie Mélodie Deransy (France)
  • 2. Preis / 2nd Prize: Lisa-Marie Mélodie Deransy (France)
  • 2. Preis / 2nd Prize: Lisa-Marie Mélodie Deransy (France)
  • 2. Preis / 2nd Prize: Lisa-Marie Mélodie Deransy (France)
  • 2. Preis / 2nd Prize: Lisa-Marie Mélodie Deransy (France)
  • 2. Preis / 2nd Prize: Lisa-Marie Mélodie Deransy (France)
  • 2. Preis / 2nd Prize: Lisa-Marie Mélodie Deransy (France)
  • 2. Preis / 2nd Prize: Lisa-Marie Mélodie Deransy (France)
  • 2. Preis / 2nd Prize: Lisa-Marie Mélodie Deransy (France)
  • 2. Preis / 2nd Prize: Lisa-Marie Mélodie Deransy (France)
  • 2. Preis / 2nd Prize: Lisa-Marie Mélodie Deransy (France)
  • 2. Preis / 2nd Prize: Lisa-Marie Mélodie Deransy (France)
  • 2. Preis / 2nd Prize: Lisa-Marie Mélodie Deransy (France)
  • 2. Preis / 2nd Prize: Lisa-Marie Mélodie Deransy (France)
  • 2. Preis / 2nd Prize: Lisa-Marie Mélodie Deransy (France)
  • 2. Preis / 2nd Prize: Lisa-Marie Mélodie Deransy (France)
  • 2. Preis / 2nd Prize: Lisa-Marie Mélodie Deransy (France)
  • 2. Preis / 2nd Prize: Lisa-Marie Mélodie Deransy (France)
  • 2. Preis / 2nd Prize: Lisa-Marie Mélodie Deransy (France)
  • 2. Preis / 2nd Prize: Lisa-Marie Mélodie Deransy (France)
  • 2. Preis / 2nd Prize: Lisa-Marie Mélodie Deransy (France)
  • 2. Preis / 2nd Prize: Lisa-Marie Mélodie Deransy (France)
  • 2. Preis / 2nd Prize: Lisa-Marie Mélodie Deransy (France)
  • 2. Preis / 2nd Prize: Lisa-Marie Mélodie Deransy (France)
  • 2. Preis / 2nd Prize: Lisa-Marie Mélodie Deransy (France)
  • 2. Preis / 2nd Prize: Lisa-Marie Mélodie Deransy (France)
  • 2. Preis / 2nd Prize: Lisa-Marie Mélodie Deransy (France)
  • 2. Preis / 2nd Prize: Lisa-Marie Mélodie Deransy (France)
  • 2. Preis / 2nd Prize: Lisa-Marie Mélodie Deransy (France)
  • 2. Preis / 2nd Prize: Lisa-Marie Mélodie Deransy (France)
  • 2. Preis / 2nd Prize: Lisa-Marie Mélodie Deransy (France)
  • 2. Preis / 2nd Prize: Lisa-Marie Mélodie Deransy (France)
  • 2. Preis / 2nd Prize: Lisa-Marie Mélodie Deransy (France)

3. Preis / 3rd Prize

Red Rocks Rising
Page | Shivanthi Carpino, Jacob Mckinney, Robert Court Mcclure, Alison Catherine Ledwith (USA)
  • 3. Preis / 3rd Prize: Page | Shivanthi Carpino, Jacob Mckinney, Robert Court Mcclure, Alison Catherine Ledwith (USA)
  • 3. Preis / 3rd Prize: Page | Shivanthi Carpino, Jacob Mckinney, Robert Court Mcclure, Alison Catherine Ledwith (USA)
  • 3. Preis / 3rd Prize: Page | Shivanthi Carpino, Jacob Mckinney, Robert Court Mcclure, Alison Catherine Ledwith (USA)
  • 3. Preis / 3rd Prize: Page | Shivanthi Carpino, Jacob Mckinney, Robert Court Mcclure, Alison Catherine Ledwith (USA)
  • 3. Preis / 3rd Prize: Page | Shivanthi Carpino, Jacob Mckinney, Robert Court Mcclure, Alison Catherine Ledwith (USA)
  • 3. Preis / 3rd Prize: Page | Shivanthi Carpino, Jacob Mckinney, Robert Court Mcclure, Alison Catherine Ledwith (USA)
  • 3. Preis / 3rd Prize: Page | Shivanthi Carpino, Jacob Mckinney, Robert Court Mcclure, Alison Catherine Ledwith (USA)
  • 3. Preis / 3rd Prize: Page | Shivanthi Carpino, Jacob Mckinney, Robert Court Mcclure, Alison Catherine Ledwith (USA)
  • 3. Preis / 3rd Prize: Page | Shivanthi Carpino, Jacob Mckinney, Robert Court Mcclure, Alison Catherine Ledwith (USA)
  • 3. Preis / 3rd Prize: Page | Shivanthi Carpino, Jacob Mckinney, Robert Court Mcclure, Alison Catherine Ledwith (USA)
  • 3. Preis / 3rd Prize: Page | Shivanthi Carpino, Jacob Mckinney, Robert Court Mcclure, Alison Catherine Ledwith (USA)
  • 3. Preis / 3rd Prize: Page | Shivanthi Carpino, Jacob Mckinney, Robert Court Mcclure, Alison Catherine Ledwith (USA)
  • 3. Preis / 3rd Prize: Page | Shivanthi Carpino, Jacob Mckinney, Robert Court Mcclure, Alison Catherine Ledwith (USA)
  • 3. Preis / 3rd Prize: Page | Shivanthi Carpino, Jacob Mckinney, Robert Court Mcclure, Alison Catherine Ledwith (USA)
  • 3. Preis / 3rd Prize: Page | Shivanthi Carpino, Jacob Mckinney, Robert Court Mcclure, Alison Catherine Ledwith (USA)
  • 3. Preis / 3rd Prize: Page | Shivanthi Carpino, Jacob Mckinney, Robert Court Mcclure, Alison Catherine Ledwith (USA)
  • 3. Preis / 3rd Prize: Page | Shivanthi Carpino, Jacob Mckinney, Robert Court Mcclure, Alison Catherine Ledwith (USA)
  • 3. Preis / 3rd Prize: Page | Shivanthi Carpino, Jacob Mckinney, Robert Court Mcclure, Alison Catherine Ledwith (USA)
  • 3. Preis / 3rd Prize: Page | Shivanthi Carpino, Jacob Mckinney, Robert Court Mcclure, Alison Catherine Ledwith (USA)
  • 3. Preis / 3rd Prize: Page | Shivanthi Carpino, Jacob Mckinney, Robert Court Mcclure, Alison Catherine Ledwith (USA)
  • 3. Preis / 3rd Prize: Page | Shivanthi Carpino, Jacob Mckinney, Robert Court Mcclure, Alison Catherine Ledwith (USA)
  • 3. Preis / 3rd Prize: Page | Shivanthi Carpino, Jacob Mckinney, Robert Court Mcclure, Alison Catherine Ledwith (USA)
  • 3. Preis / 3rd Prize: Page | Shivanthi Carpino, Jacob Mckinney, Robert Court Mcclure, Alison Catherine Ledwith (USA)
  • 3. Preis / 3rd Prize: Page | Shivanthi Carpino, Jacob Mckinney, Robert Court Mcclure, Alison Catherine Ledwith (USA)
  • 3. Preis / 3rd Prize: Page | Shivanthi Carpino, Jacob Mckinney, Robert Court Mcclure, Alison Catherine Ledwith (USA)
  • 3. Preis / 3rd Prize: Page | Shivanthi Carpino, Jacob Mckinney, Robert Court Mcclure, Alison Catherine Ledwith (USA)
  • 3. Preis / 3rd Prize: Page | Shivanthi Carpino, Jacob Mckinney, Robert Court Mcclure, Alison Catherine Ledwith (USA)
  • 3. Preis / 3rd Prize: Page | Shivanthi Carpino, Jacob Mckinney, Robert Court Mcclure, Alison Catherine Ledwith (USA)
  • 3. Preis / 3rd Prize: Page | Shivanthi Carpino, Jacob Mckinney, Robert Court Mcclure, Alison Catherine Ledwith (USA)
  • 3. Preis / 3rd Prize: Page | Shivanthi Carpino, Jacob Mckinney, Robert Court Mcclure, Alison Catherine Ledwith (USA)
  • 3. Preis / 3rd Prize: Page | Shivanthi Carpino, Jacob Mckinney, Robert Court Mcclure, Alison Catherine Ledwith (USA)
  • 3. Preis / 3rd Prize: Page | Shivanthi Carpino, Jacob Mckinney, Robert Court Mcclure, Alison Catherine Ledwith (USA)
  • 3. Preis / 3rd Prize: Page | Shivanthi Carpino, Jacob Mckinney, Robert Court Mcclure, Alison Catherine Ledwith (USA)
  • 3. Preis / 3rd Prize: Page | Shivanthi Carpino, Jacob Mckinney, Robert Court Mcclure, Alison Catherine Ledwith (USA)
  • 3. Preis / 3rd Prize: Page | Shivanthi Carpino, Jacob Mckinney, Robert Court Mcclure, Alison Catherine Ledwith (USA)
  • 3. Preis / 3rd Prize: Page | Shivanthi Carpino, Jacob Mckinney, Robert Court Mcclure, Alison Catherine Ledwith (USA)
  • 3. Preis / 3rd Prize: Page | Shivanthi Carpino, Jacob Mckinney, Robert Court Mcclure, Alison Catherine Ledwith (USA)
  • 3. Preis / 3rd Prize: Page | Shivanthi Carpino, Jacob Mckinney, Robert Court Mcclure, Alison Catherine Ledwith (USA)
  • 3. Preis / 3rd Prize: Page | Shivanthi Carpino, Jacob Mckinney, Robert Court Mcclure, Alison Catherine Ledwith (USA)
  • 3. Preis / 3rd Prize: Page | Shivanthi Carpino, Jacob Mckinney, Robert Court Mcclure, Alison Catherine Ledwith (USA)
  • 3. Preis / 3rd Prize: Page | Shivanthi Carpino, Jacob Mckinney, Robert Court Mcclure, Alison Catherine Ledwith (USA)
  • 3. Preis / 3rd Prize: Page | Shivanthi Carpino, Jacob Mckinney, Robert Court Mcclure, Alison Catherine Ledwith (USA)
  • 3. Preis / 3rd Prize: Page | Shivanthi Carpino, Jacob Mckinney, Robert Court Mcclure, Alison Catherine Ledwith (USA)
  • 3. Preis / 3rd Prize: Page | Shivanthi Carpino, Jacob Mckinney, Robert Court Mcclure, Alison Catherine Ledwith (USA)
  • 3. Preis / 3rd Prize: Page | Shivanthi Carpino, Jacob Mckinney, Robert Court Mcclure, Alison Catherine Ledwith (USA)
  • 3. Preis / 3rd Prize: Page | Shivanthi Carpino, Jacob Mckinney, Robert Court Mcclure, Alison Catherine Ledwith (USA)
  • 3. Preis / 3rd Prize: Page | Shivanthi Carpino, Jacob Mckinney, Robert Court Mcclure, Alison Catherine Ledwith (USA)
  • 3. Preis / 3rd Prize: Page | Shivanthi Carpino, Jacob Mckinney, Robert Court Mcclure, Alison Catherine Ledwith (USA)
  • 3. Preis / 3rd Prize: Page | Shivanthi Carpino, Jacob Mckinney, Robert Court Mcclure, Alison Catherine Ledwith (USA)
  • 3. Preis / 3rd Prize: Page | Shivanthi Carpino, Jacob Mckinney, Robert Court Mcclure, Alison Catherine Ledwith (USA)
  • 3. Preis / 3rd Prize: Page | Shivanthi Carpino, Jacob Mckinney, Robert Court Mcclure, Alison Catherine Ledwith (USA)
  • 3. Preis / 3rd Prize: Page | Shivanthi Carpino, Jacob Mckinney, Robert Court Mcclure, Alison Catherine Ledwith (USA)
  • 3. Preis / 3rd Prize: Page | Shivanthi Carpino, Jacob Mckinney, Robert Court Mcclure, Alison Catherine Ledwith (USA)
  • 3. Preis / 3rd Prize: Page | Shivanthi Carpino, Jacob Mckinney, Robert Court Mcclure, Alison Catherine Ledwith (USA)

Buildner Student Award

OutSide Inn
Beyzanur Koç, Gazi University (Turkey)
  • Buildner Student Award: Beyzanur Koç, Gazi University (Turkey)
  • Buildner Student Award: Beyzanur Koç, Gazi University (Turkey)
  • Buildner Student Award: Beyzanur Koç, Gazi University (Turkey)
  • Buildner Student Award: Beyzanur Koç, Gazi University (Turkey)
  • Buildner Student Award: Beyzanur Koç, Gazi University (Turkey)
  • Buildner Student Award: Beyzanur Koç, Gazi University (Turkey)
  • Buildner Student Award: Beyzanur Koç, Gazi University (Turkey)
  • Buildner Student Award: Beyzanur Koç, Gazi University (Turkey)
  • Buildner Student Award: Beyzanur Koç, Gazi University (Turkey)
  • Buildner Student Award: Beyzanur Koç, Gazi University (Turkey)
  • Buildner Student Award: Beyzanur Koç, Gazi University (Turkey)
  • Buildner Student Award: Beyzanur Koç, Gazi University (Turkey)
  • Buildner Student Award: Beyzanur Koç, Gazi University (Turkey)
  • Buildner Student Award: Beyzanur Koç, Gazi University (Turkey)
  • Buildner Student Award: Beyzanur Koç, Gazi University (Turkey)
  • Buildner Student Award: Beyzanur Koç, Gazi University (Turkey)
  • Buildner Student Award: Beyzanur Koç, Gazi University (Turkey)
  • Buildner Student Award: Beyzanur Koç, Gazi University (Turkey)
  • Buildner Student Award: Beyzanur Koç, Gazi University (Turkey)
  • Buildner Student Award: Beyzanur Koç, Gazi University (Turkey)
  • Buildner Student Award: Beyzanur Koç, Gazi University (Turkey)
  • Buildner Student Award: Beyzanur Koç, Gazi University (Turkey)
  • Buildner Student Award: Beyzanur Koç, Gazi University (Turkey)
  • Buildner Student Award: Beyzanur Koç, Gazi University (Turkey)
  • Buildner Student Award: Beyzanur Koç, Gazi University (Turkey)
  • Buildner Student Award: Beyzanur Koç, Gazi University (Turkey)
  • Buildner Student Award: Beyzanur Koç, Gazi University (Turkey)
  • Buildner Student Award: Beyzanur Koç, Gazi University (Turkey)
  • Buildner Student Award: Beyzanur Koç, Gazi University (Turkey)
  • Buildner Student Award: Beyzanur Koç, Gazi University (Turkey)
  • Buildner Student Award: Beyzanur Koç, Gazi University (Turkey)
  • Buildner Student Award: Beyzanur Koç, Gazi University (Turkey)
  • Buildner Student Award: Beyzanur Koç, Gazi University (Turkey)
  • Buildner Student Award: Beyzanur Koç, Gazi University (Turkey)

Buildner Sustainability Award

Beyond The Invisible
Uladzislau Chabai (Netherlands)
  • Buildner Sustainability Award: Uladzislau Chabai (Netherlands)
  • Buildner Sustainability Award: Uladzislau Chabai (Netherlands)
  • Buildner Sustainability Award: Uladzislau Chabai (Netherlands)
  • Buildner Sustainability Award: Uladzislau Chabai (Netherlands)
  • Buildner Sustainability Award: Uladzislau Chabai (Netherlands)
  • Buildner Sustainability Award: Uladzislau Chabai (Netherlands)
  • Buildner Sustainability Award: Uladzislau Chabai (Netherlands)
  • Buildner Sustainability Award: Uladzislau Chabai (Netherlands)
  • Buildner Sustainability Award: Uladzislau Chabai (Netherlands)
  • Buildner Sustainability Award: Uladzislau Chabai (Netherlands)
  • Buildner Sustainability Award: Uladzislau Chabai (Netherlands)
  • Buildner Sustainability Award: Uladzislau Chabai (Netherlands)
  • Buildner Sustainability Award: Uladzislau Chabai (Netherlands)
  • Buildner Sustainability Award: Uladzislau Chabai (Netherlands)
  • Buildner Sustainability Award: Uladzislau Chabai (Netherlands)
  • Buildner Sustainability Award: Uladzislau Chabai (Netherlands)
  • Buildner Sustainability Award: Uladzislau Chabai (Netherlands)
  • Buildner Sustainability Award: Uladzislau Chabai (Netherlands)
  • Buildner Sustainability Award: Uladzislau Chabai (Netherlands)
  • Buildner Sustainability Award: Uladzislau Chabai (Netherlands)
  • Buildner Sustainability Award: Uladzislau Chabai (Netherlands)
  • Buildner Sustainability Award: Uladzislau Chabai (Netherlands)
  • Buildner Sustainability Award: Uladzislau Chabai (Netherlands)
  • Buildner Sustainability Award: Uladzislau Chabai (Netherlands)
  • Buildner Sustainability Award: Uladzislau Chabai (Netherlands)
  • Buildner Sustainability Award: Uladzislau Chabai (Netherlands)
  • Buildner Sustainability Award: Uladzislau Chabai (Netherlands)
  • Buildner Sustainability Award: Uladzislau Chabai (Netherlands)
  • Buildner Sustainability Award: Uladzislau Chabai (Netherlands)
  • Buildner Sustainability Award: Uladzislau Chabai (Netherlands)
  • Buildner Sustainability Award: Uladzislau Chabai (Netherlands)
  • Buildner Sustainability Award: Uladzislau Chabai (Netherlands)
  • Buildner Sustainability Award: Uladzislau Chabai (Netherlands)
  • Buildner Sustainability Award: Uladzislau Chabai (Netherlands)
  • Buildner Sustainability Award: Uladzislau Chabai (Netherlands)
  • Buildner Sustainability Award: Uladzislau Chabai (Netherlands)
  • Buildner Sustainability Award: Uladzislau Chabai (Netherlands)
  • Buildner Sustainability Award: Uladzislau Chabai (Netherlands)
  • Buildner Sustainability Award: Uladzislau Chabai (Netherlands)
  • Buildner Sustainability Award: Uladzislau Chabai (Netherlands)
  • Buildner Sustainability Award: Uladzislau Chabai (Netherlands)
  • Buildner Sustainability Award: Uladzislau Chabai (Netherlands)
  • Buildner Sustainability Award: Uladzislau Chabai (Netherlands)
  • Buildner Sustainability Award: Uladzislau Chabai (Netherlands)
  • Buildner Sustainability Award: Uladzislau Chabai (Netherlands)
  • Buildner Sustainability Award: Uladzislau Chabai (Netherlands)
  • Buildner Sustainability Award: Uladzislau Chabai (Netherlands)
  • Buildner Sustainability Award: Uladzislau Chabai (Netherlands)
  • Buildner Sustainability Award: Uladzislau Chabai (Netherlands)
  • Buildner Sustainability Award: Uladzislau Chabai (Netherlands)
  • Buildner Sustainability Award: Uladzislau Chabai (Netherlands)
  • Buildner Sustainability Award: Uladzislau Chabai (Netherlands)
  • Buildner Sustainability Award: Uladzislau Chabai (Netherlands)
  • Buildner Sustainability Award: Uladzislau Chabai (Netherlands)
  • Buildner Sustainability Award: Uladzislau Chabai (Netherlands)
  • Buildner Sustainability Award: Uladzislau Chabai (Netherlands)
Verfahrensart
Offener architektonischer Ideenwettbewerb

Wettbewerbsaufgabe
Point Access Blocks (PAB), auch bekannt als Single Stair Housing, sind ein gängiges und effizientes Wohnkonzept, das in den meisten Städten der Welt zum Einsatz kommt. Diese Bauweise, die sich durch ein einziges Treppenhaus für alle Einheiten auszeichnet, unterstützt das Wohnen in hoher Dichte, fördert begehbare Nachbarschaften und verbessert die städtische Nachhaltigkeit. Trotz ihrer Vorteile ist diese Wohnform in Nordamerika aufgrund der strengen Bauvorschriften, die für Gebäude mit mehr als zwei oder drei Stockwerken zwei Treppenhäuser vorschreiben, weitgehend nicht vertreten. Diese überholten Vorschriften haben zur Wohnungskrise beigetragen, da sie die Vielfalt und Erschwinglichkeit von Wohnmöglichkeiten einschränken.

Buildner und SAR+ Architects sind stolz darauf, die Denver Single-Stair Housing Challenge, den 18. Teil der Buildner Affordable Housing Challenge Serie, auszuloben. Dieser Wettbewerb zielt darauf ab, die Wohnungskrise in Colorado zu bekämpfen, indem er innovative Designlösungen für mittelhohe, einstöckige Wohnungen fordert.

Der Denver Single-Stair Housing Challenge ruft Architekten, Designer und Stadtplaner aus der ganzen Welt dazu auf, das Potenzial von PAB-Wohnungen in den USA neu zu definieren. Die Teilnehmer sollen mittelhohe Gebäude mit bis zu sechs Stockwerken auf ungenutzten Grundstücken in Denver entwerfen. Diese Entwürfe sollten nicht nur den bestehenden Bebauungsplänen und städtebaulichen Zielen von Denver entsprechen, sondern auch innovative Lösungen zur Überwindung der rechtlichen Hindernisse vorschlagen, die derzeit die Umsetzung von einstöckigen Wohngebäuden behindern.

Competition assignment
Point access block (PAB) housing, also known as single stair housing, is a common and efficient residential design used in urban environments across most of the world. This design, characterized by a single staircase that serves all units, supports high-density living, promotes walkable neighborhoods, and enhances urban sustainability. However, despite its benefits, this housing typology is largely absent in North America due to stringent building codes that mandate dual staircases for buildings above two or three stories. These outdated regulations have contributed to the housing crisis by limiting the diversity and affordability of housing options.

Buildner and SAR+ Architects are proud to launch the Denver Single-Stair Housing Challenge, the 18th competition in Buildner's Affordable Housing Challenge series. This competition aims to address the housing crisis in Colorado by inviting innovative design solutions for mid-rise, single-stair housing.

The Denver Single-Stair Housing Challenge calls on architects, designers, and urban planners from around the world to reimagine the potential of PAB housing in the U.S. Participants are tasked with designing mid-rise buildings, up to six stories high, on underutilized lots in Denver. These designs should not only comply with the existing zoning and urban planning goals of Denver but also propose innovative solutions to overcome the regulatory barriers that currently hinder the implementation of single-stair housing.

Jury
Cole Chandler, City and County of Denver (USA)
Michael Eliason, Larch Lab (USA)
Lauren Folkerts, HMH Architecture + Interiors (USA)
Jon Gambrill, Gensler (USA)
Kate Hilbert, Real Estate Development at Habitat for Humanity of Metro Denver (USA)
Matt Hutchins, CAST Architecture (USA)
Sean Jursnick, SAR+ Architects (USA)
Peter LiFari, Maiker Housing Partners (USA)
Terra Mazzeo, Stantec (USA)
Sarah Parady, Denver City Council (USA)
Todd Wenkoski, Livable Cities Studio (USA)
Darrell Watson, Denver City Council (USA)

Weitere Informationen zu allen Gewinner*innen finden Sie unter /
More information about all winners can be found at:

architecturecompetitions.com/pointaccessblock
Denver Single-Stair Housing Challenge
Affordable Housing Series #18
 
Organizers
Buildner Architecture Competitions
 
SAR+ Architects
 
The Competition
Point access block (PAB) housing, also known as single stair housing, is a common and efficient residential design used in urban environments across most of the world. This design, characterized by a single staircase that serves all units, supports high-density living, promotes walkable neighborhoods, and enhances urban sustainability. However, despite its benefits, this housing typology is largely absent in North America due to stringent building codes that mandate dual staircases for buildings above two or three stories. These outdated regulations have contributed to the housing crisis by limiting the diversity and affordability of housing options.
 
Buildner and SAR+ Architects are proud to launch the Denver Single-Stair Housing Challenge, the 18th competition in Buildner's Affordable Housing Challenge series. This competition aims to address the housing crisis in Colorado by inviting innovative design solutions for mid-rise, single-stair housing.
 
The Denver Single-Stair Housing Challenge calls on architects, designers, and urban planners from around the world to reimagine the potential of PAB housing in the U.S. Participants are tasked with designing mid-rise buildings, up to six stories high, on underutilized lots in Denver. These designs should not only comply with the existing zoning and urban planning goals of Denver but also propose innovative solutions to overcome the regulatory barriers that currently hinder the implementation of single-stair housing.
 
Eligibility
Competition is open to all. No professional qualification is required. 
Design proposals can be developed individually or by teams (4 team members maximum). 
Correspondence with organizers must be conducted in English; 
All information submitted by participants must be in English.
 
Schedule
Closing date for registration: 12 December 2024
Closing date for project submission: 23 January 2025, 23:59 (LONDON TIME)
Announcement of winners: 6 March 2025
 
Prizes
Total Prize Fund: 20,000 $
 
1st Prize: 10,000 $
2nd Prize: 5,000 $
3rd Prize: 3,000 $
 
Buildner Student Award: 1,000 $
Buildner Sustainability Award: 1,000 $
 
More information and documents at

Weitere Ergebnisse zum Thema

Jetzt Abonnent werden um alle Bilder zu sehen

jetzt abonnieren

Schon wa Abonnent?
Bitte einloggen